Badrum

Fastighet från 1919 på Söderalm, Stockholm.
Genomfört 2017.

Det här badrummet hade en lite knepig planlösning med en långsmal korridor först och sedan ett rumt med ett stort fönster i. Ett badrum med fönster är härligt men för med sig utmaningar vid utformningen.

Den här renoveringen av badrum startade med en vattenläcka som gjorde att tak och golv ner till trossbotten behövdes öppnas upp och torkas ut. När allt ändå var rivet valde vi att göra toaletten separat med en egen ingång.

Kakel i en mjuk vit färg med ljus och tunn fog. Handfat från Duravit på ben och kran från Tapwell. Vägglamporna heter “Waldorf Astoria” och har stavar av glas i sig som ger ett fint sken. För att mjuka upp allt det kantiga valde vi en rund spegel.

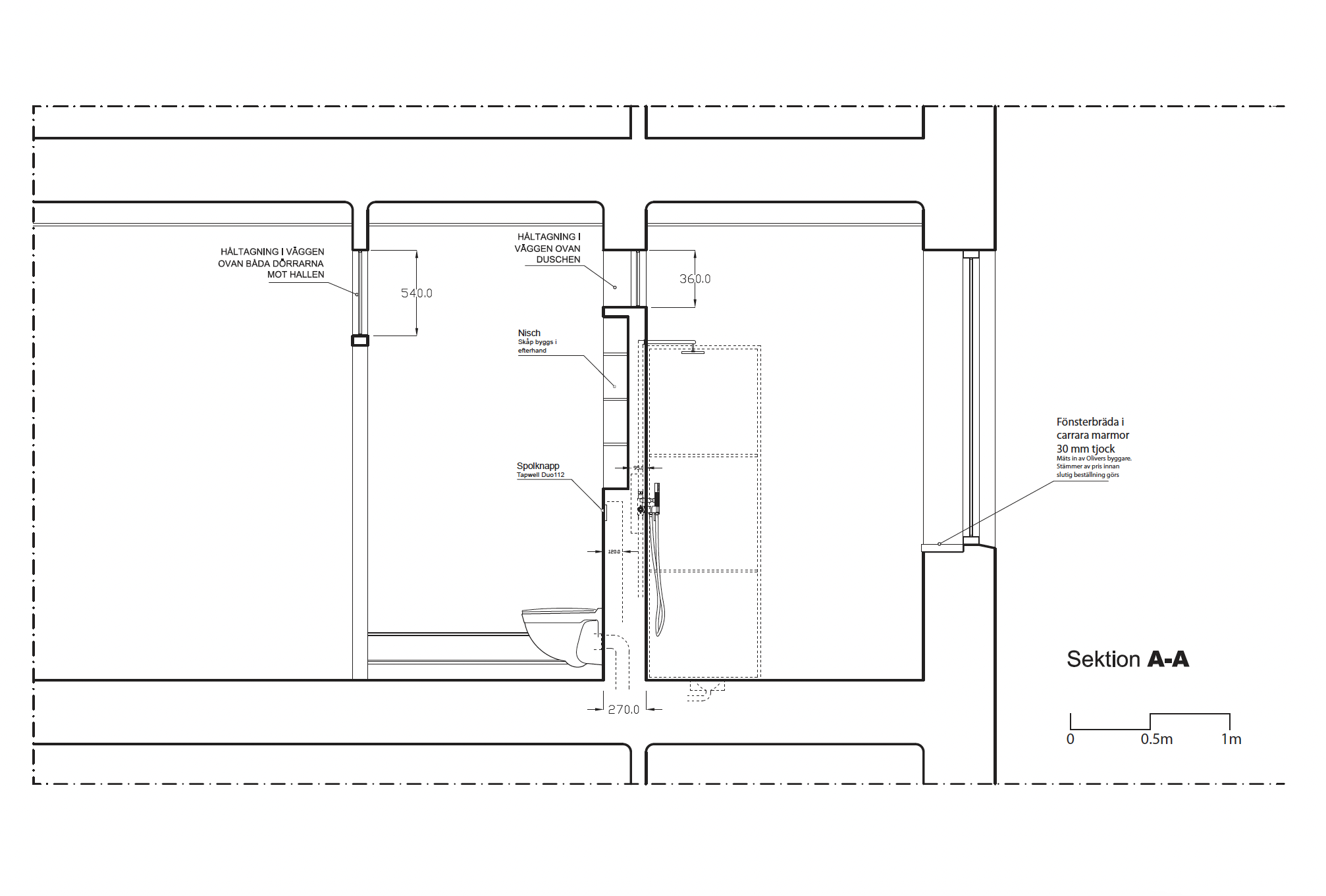
Duschen är från Tapwell och ramen till gjordes av en smed och fick sedan insatt duschglas.

Fönstret målades svart för att hålla ihop med duschväggen och de svarta detaljerna i mosaiken på golvet. Även eluttagen var svarta, från Renova.

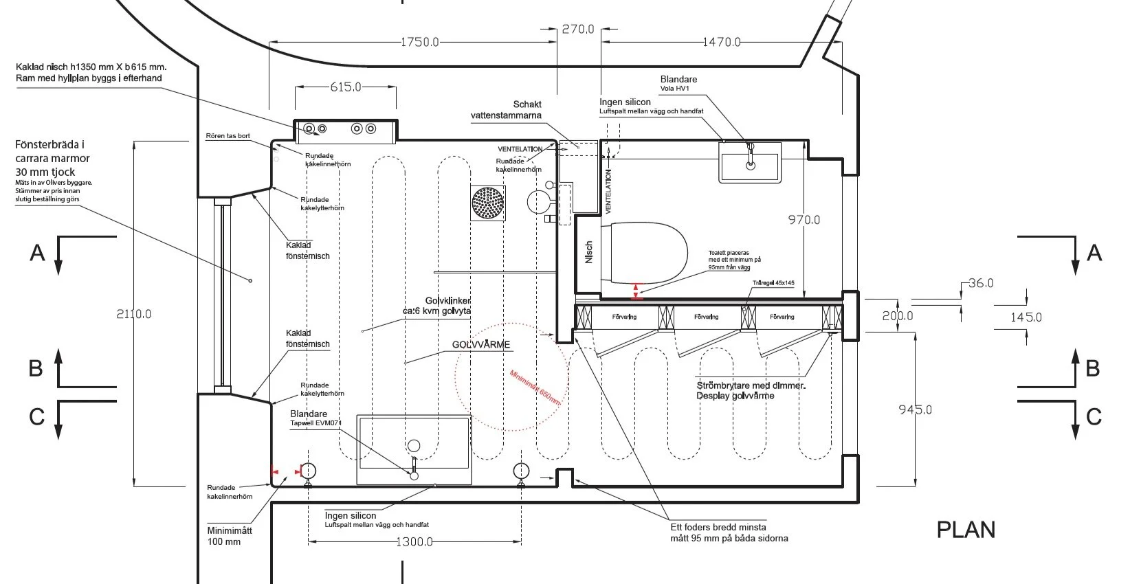
På ritningen ovan syns hur toalett och dusch ligger vägg i vägg i olika rum. Nedan hur dusch, skåp och inbyggd förvaring i den smalare gången på väg in i badrummet.

På golvet lades hexagonformad mosaik. I badrummet i ett enkelt mönster med enstaka svarta mosaikbitar i det vita. I badrummet var botten också vit men med ett mönster i svarta bitar som liknar blommor.

Föregående
Föregående

Tallrikshylla

Nästa
Nästa

Garderober